Jednotka A – levý byt (White Walls)
Jednotka A představuje ideální volbu pro ty, kteří si chtějí nové bydlení dokončit přesně podle vlastních představ. Dům nabízí dispozici 5+kk, obytnou plochu přes 190 m², samostatný vstup a vlastní garáž.
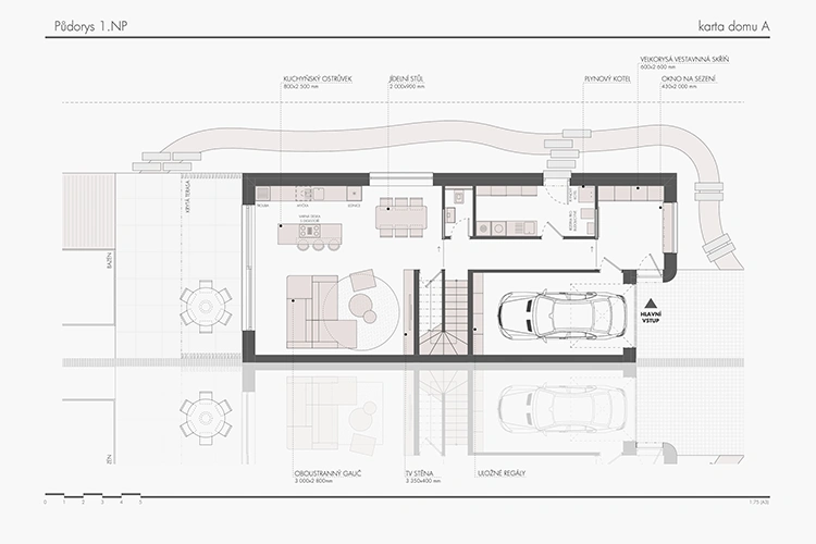
Po vstupu do domu se ocitnete v prostorné chodbě, která působí vzdušně a nabízí dostatek místa pro vestavěné skříně či praktické úložné řešení. Hned u vstupu se nachází technická místnost, kde bude umístěno tepelné čerpadlo a zároveň zde vzniká prostor například pro pračku nebo další spotřebiče. Nechybí ani samostatné WC s umyvadlem.
Když projdeme chodbou dál, otevře se před námi hlavní obytná část domu – velkorysý obývací pokoj propojený s kuchyní a jídelnou. Jedná se o světlý a otevřený prostor, který je ideální pro rodinný život, návštěvy i každodenní fungování domácnosti.
Z obývacího pokoje je přímý vstup na terasu, která navazuje na zahradu. Terasa je krytá a poskytuje příjemné místo pro relaxaci, posezení nebo grilování.
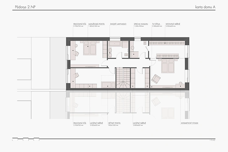
Po schodišti se dostaneme do druhého podlaží. Zde se nachází ložnice rodičů, která navazuje na vlastní šatnu a koupelnu. Díky tomuto řešení má hlavní ložnice dostatek soukromí a komfortu. Na druhé straně patra jsou dva dětské pokoje, které sdílí společnou koupelnu. Nechybí ani další samostatná místnost, kterou lze využít jako pracovnu, hernu, posilovnu nebo pokoj pro hosty.
Jednotka A je připravena ve standardu White Walls a aktuálně se nachází v závěrečné fázi dokončování. V současnosti se dokončují sádrokartonové konstrukce, následovat bude výmalba, kompletace elektroinstalace a osazení tepelného čerpadla včetně zásobníku teplé vody.
Standard White Walls znamená, že dům je připravený po technické stránce, má hotové rozvody a konstrukce, ale finální prvky interiéru si nový majitel může doladit podle sebe – například podlahy, koupelny, obklady, dveře nebo kuchyň.
A právě v tom spočívá hlavní výhoda této jednotky – možnost vytvořit si bydlení opravdu individuálně. Dokončení je možné řešit i ve spolupráci s naším partnerským studiem, které zajistí návrh i realizaci celého interiéru podle toku ateliéru, tedy krok za krokem od návrhu až po finální provedení.
Domov, který působí jako moderní rezidence, nabízí nejen funkčnost, ale především pocit výjimečného zázemí. Každý kout je navržen s myšlenkou na pohodlí, estetiku a prestiž, takže se zde snoubí luxusní životní styl s intimní atmosférou soukromí. Je to místo, kde se rána nesou ve znamení inspirace, dny v rytmu pohodlí a večery v náruči harmonie. Interiér, který není jen o prostoru, ale o zážitku.

Rezidence Bezdíčkova je postavena na pevném základu luxusních standardů, které zajišťují komfort a prestiž. Současně však ponechává prostor pro osobní volby – od kuchyně přes detaily interiéru až po finální vzhled vašeho vysněného bydlení.

Bydlet v ulici Bezdíčkova znamená mít město na dosah ruky, a přesto si užívat klidné soukromí. Tato prestižní adresa v Pardubicích spojuje to nejlepší z obou světů – dynamický život centra s jeho kavárnami, restauracemi a kulturní scénou, a zároveň blízkost zeleně, parků a odpočinkových zón pro chvíle pohody.
Pokud máte vážný zájem, volejte v rozumnou denní dobu na číslo 773966115.
